Blockbohlen und Mauerwerk in Kombination
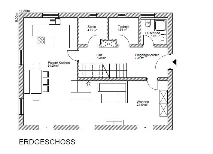
Die Bauherren des Blockhaus Hannover haben eine Kombination aus Mauerwerk und Holzhaus gewählt. Das Erdgeschoss ist ein Ziegelbau und das Dachgeschoss ein Blockbau. Das Haus hat eine klassischen Bodenplatte ohne zusätzliche Unterkellerung. Es gibt also nur EG und OG.Der Eingangsbereich ist durch einen großzügigen Flur gekennzeichnet, woran Gästebad, Technikraum, Speisekammer und der geräumige Wohnbereich angrenzen. Ein besonderes hervorzuhebendes Detail im Blockhaus Hannover ist die Aussparung der Garderobe. Dadurch wird die Fläche des Flurs nicht durch einen großen Schrank verkleinert und Jacken & Mäntel können ohne großes Aufsehen verstaut werden. Die offene Wohnküche bietet mit ihren knapp 60 qm viel Raum um hier gemeinsam den Alltag zu genießen. An Küche und Essbereich grenzt direkt die Terrasse an. Diese lädt im Sommer zum gemütlichen Verweilen einlädt.









